Huntley Cabin
About the Cabin
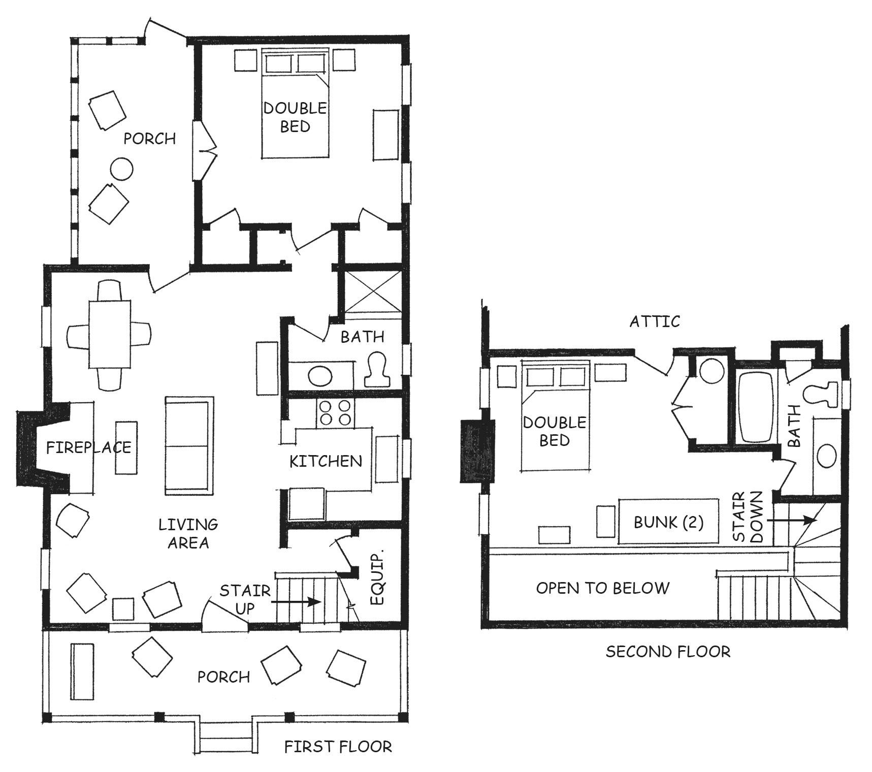
This two-story home, is located just west of SNP in Luray, VA. Built by the Huntley family as a mountain getaway, this modern cabin provides a kitchen, two bathrooms, two double beds and a double deck bunk, a large fireplace, and two covered porches. Parking is available by the cabin, after careful travel along the rough access road. Hikers can continue to follow the access road to Crusher’s Ridge Trail, which leads to the AT.
Access Note: The last mile to cabin parking along Morning Star Road can become heavily eroded and even impassable in the event of inclement weather. High clearance vehicles are recommended. No alternate access is available. See "Accessing Cabins" in Cabin FAQs for further information.
For more information on this and other PATC cabins, we recommend acquiring and reading a copy of our PATC Cabins Book.




