Vining Cabin
About the Cabin
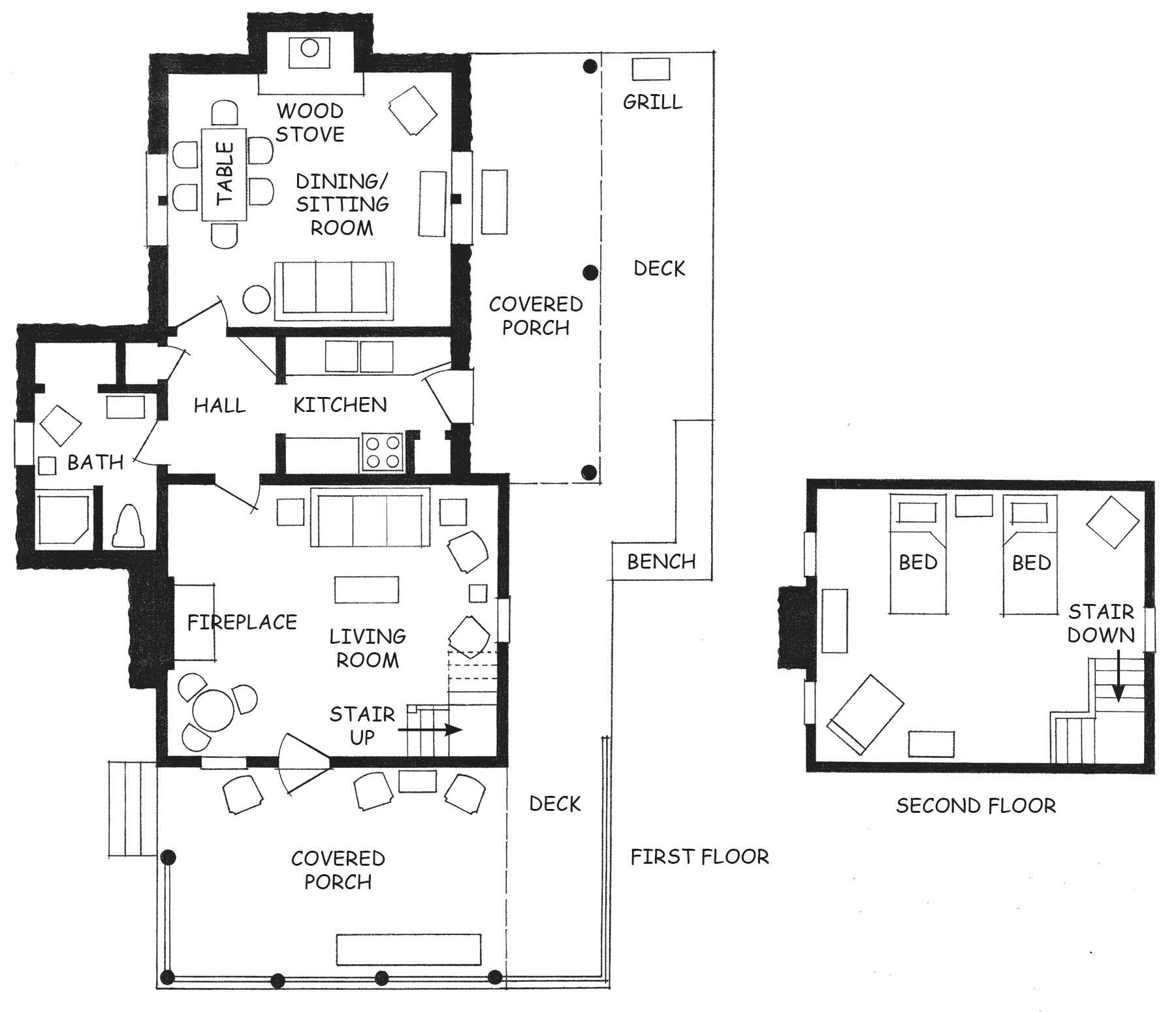
This modern cabin, adjacent to the PATC-owned Vining Tract, is located just outside of Stanardsville, VA. Consisting of an original, 100 year-old chestnut structure and attached stone addition, Vining offers modern convenience in a rustic setting. With 2 single beds and 2 fold-out double futons, the cabin provides sleeping arrangements for 6. Access the cabin by a 0.3 mile hike-in from parking. Hikers can explore the Vining Tract.
For more information on this and other PATC cabins, we recommend acquiring and reading a copy of our PATC Cabins Book.





