Stoner Cabin

About the Cabin
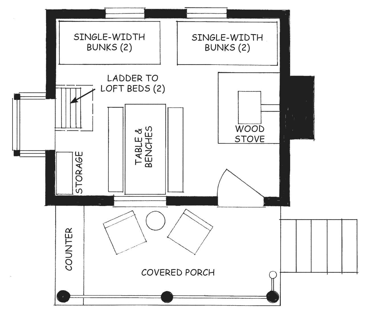
Stoner Cabin is a one room cabin with a sleeping loft. It is near Etlan, VA, with close access to hiking White Oak Canyon and Old Rag Mountain. There are wineries and other means of recreation in the the immediate area, with the towns of Sperryville and Madison a short drive away.
The property consists of five-acre parcel with improved paved road frontage for easy access and parking. The uphill walk from the road to the cabin is 5 minutes. While there are neighbors on both sides, there is a significant distance between them and the cabin. There is also an outdoor cooking "bench" and picnic table.
Stoner at a Glance
Membership
Members-Only
Cabin Type
Primitive
Pet Friendly
Yes
Capacity
4





