Myron Glaser Cabin
About the Cabin
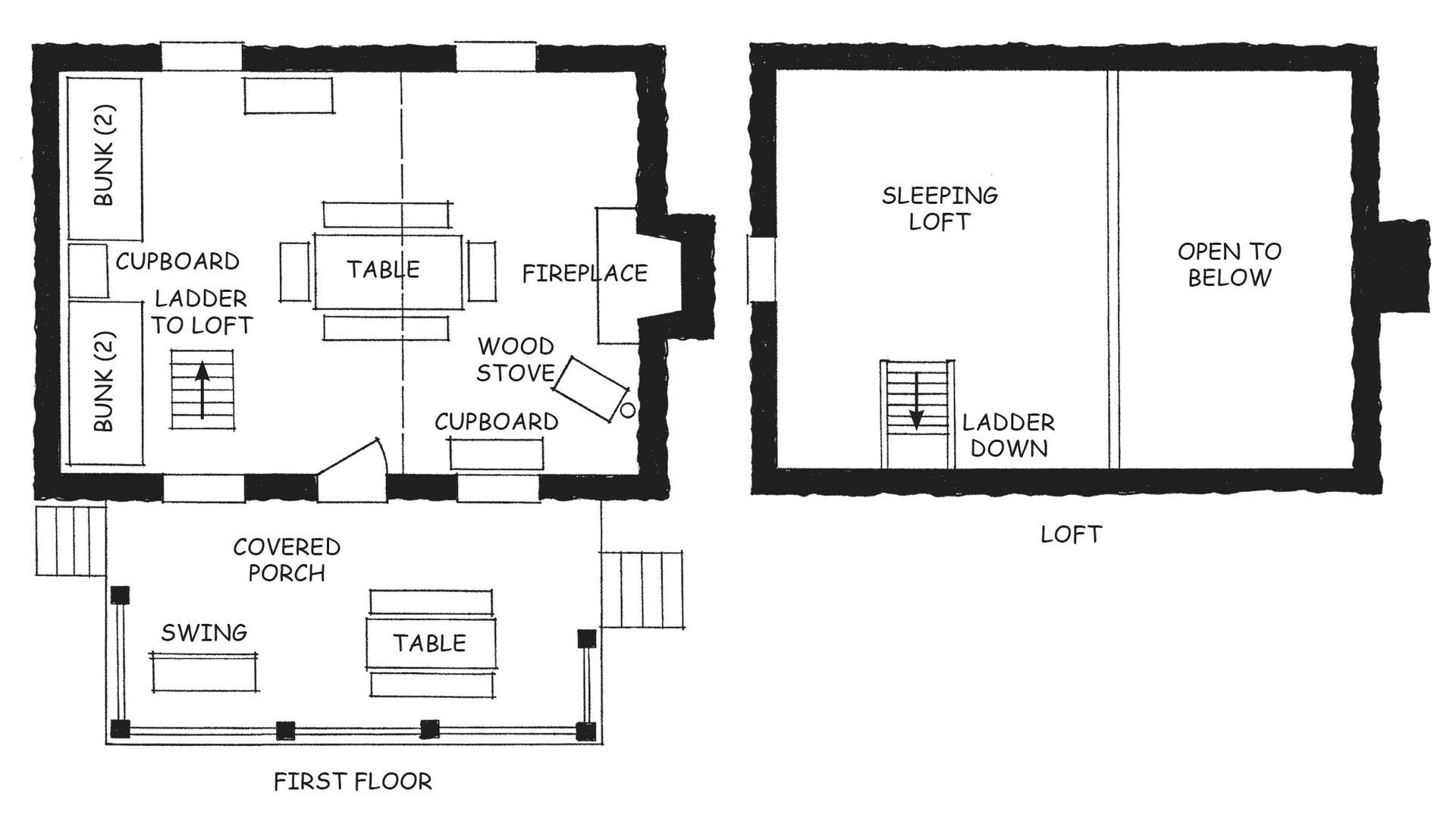
This primitive, stone cabin is located along the AT near Paris, VA. Dedicated to long-time PATC member and travel writer, Myron Glaser, this cabin is ideal for winter hiking excursions. Access the cabin by a moderate 1.9 mile hike-in from parking. There, you will find a well-lit cabin with skylights and large windows; just open the shutters for more natural light.
A wood stove and large stone fireplace keep the cabin quite warm and cozy, with a large front porch, and sleeping for 12 including 2 double-deck bunks and a sleeping loft for up to 8 mattresses. Hikers can walk along the AT and head south to brave the “roller coaster.”
For more information on this and other PATC cabins, we recommend acquiring and reading a copy of our PATC Cabins Book.







