Merritt's Mutton Top Cabin
About the Cabin
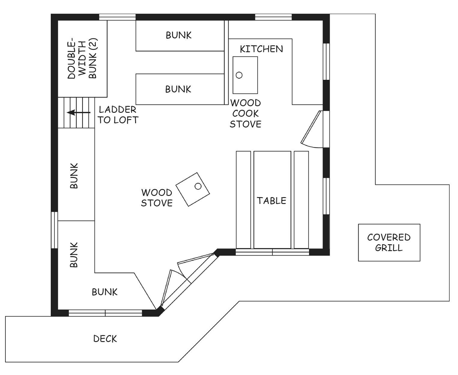
This primitive, members-only cabin is situated in an open meadow and offers an exquisite panoramic view of the Virginia Piedmont. Designed by member Robert Pena, built by PATC volunteers, and dedicated in 1992, the cabin allows sleeping for 9 with 5 bunks, and a double-width, double deck bunk. Access the cabin by a 0.5 mile hike-in from the shared parking area, or brave the rough road to the cabin if conditions allow. Hikers can explore the Vining Tract or head to SNP. Note that bear sightings are frequent in the meadow below. If you miss out on this popular cabin, check out some of the other cabins in the Vining Tract.
ACCESS NOTE: The last 0.8 miles to the shared cabin parking along Goose Pond Road can become heavily eroded at times, and high clearance vehicles are recommended. Although this gravel road is state-maintained, it can become impassible after heavy rains or in the event of snow. No alternate access is available.
For more information on this and other PATC cabins, we recommend acquiring and reading a copy of our PATC Cabins Book.






