Morris Cabin
About the Cabin
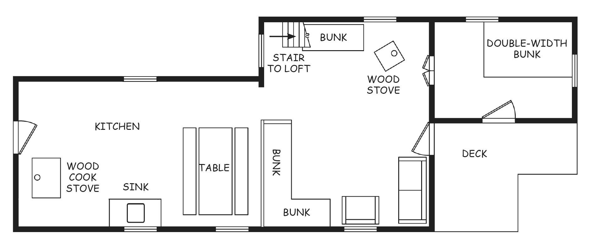
Located on the PATC-owned Vining Tract, outside Lydia, VA, this primitive, four-room cabin includes a kitchen/dining room, living room, bunkroom, and loft space. First begun in 1927 by Wayman Morris, the spacious log cabin boasts a lovely view of the surrounding area. The nearby spring flows into an old cast iron tub once located at the UVA guesthouse, purportedly used by Winston Churchill and T.S. Eliot. Access the cabin by a 0.5 mile hike-in from the shared parking area, or brave the rough road to the cabin if conditions allow. Hikers can explore the Vining Tract or head to SNP.
ACCESS NOTE: The last 0.8 miles to the shared cabin parking along Goose Pond Road can become heavily eroded at times, and high clearance vehicles are recommended. Although this gravel road is state-maintained, it can become impassible after heavy rains or in the event of snow. No alternate access is available.
For more information on this and other PATC cabins, we recommend acquiring and reading a copy of our PATC Cabins Book.




