Meadows Cabin
About the Cabin
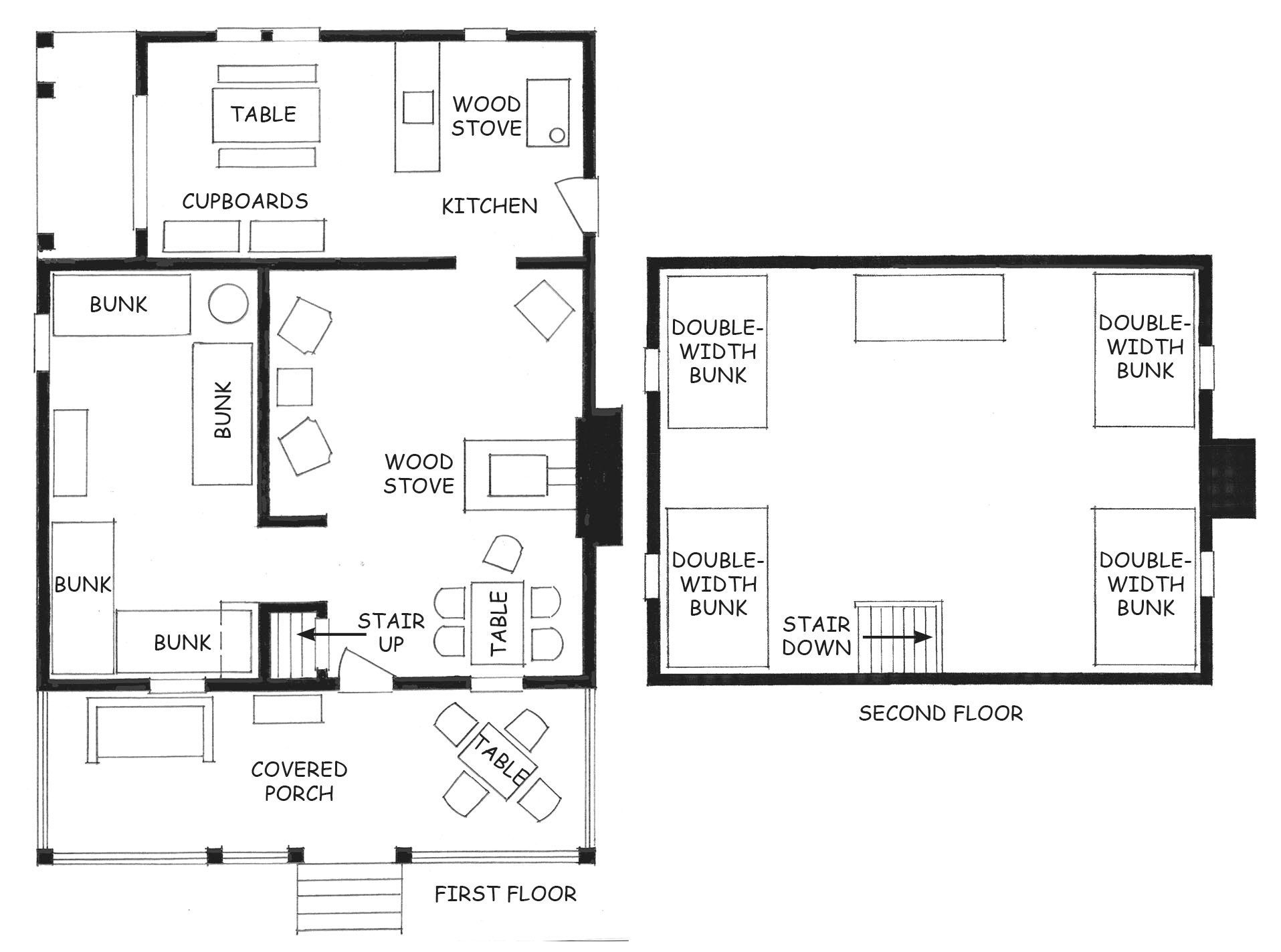
This semi-primitive chestnut log cabin, built by Edgar Meadows in 1913, is located west of Syria, VA, on the east side of the Central District of SNP. The spacious cabin boasts two rooms with a large kitchen downstairs, as well as a single large room upstairs. The cabin offers lighting, 2 wood stoves, a singular kitchen and dining area, and 6 bunks and a double-width, double-deck bunk for sleeping. While there is a spring near the cabin, we recommend bringing supplemental water. Access the cabin by a 0.2 mile hike-in from parking. Hikers can use the 1.1 mile trail on the property or utilize the many trails in SNP.
Note: Depending on the season, black snakes may be spotted around or even inside the cabin. Black snakes help mitigate the rodent population and deter other venomous snakes and should not be harmed.
For more information on this and other PATC cabins, we recommend acquiring and reading a copy of our PATC Cabins Book.



