Little Cove Cabin
About the Cabin
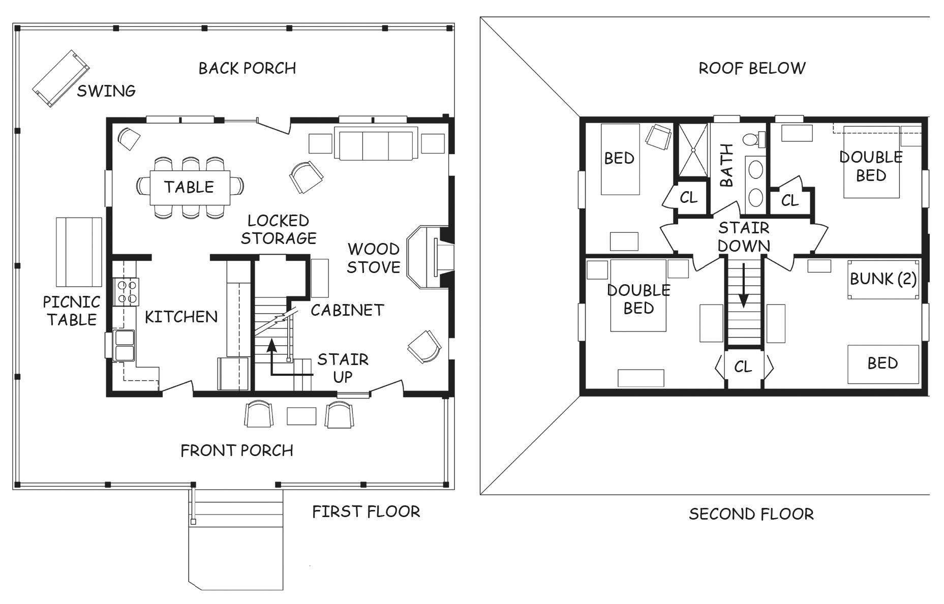
This modern cabin, acquired by PATC in 2010 and largely remodeled by 2013, is located in Franklin County, PA, just west of Mercersburg. Noted for its large wraparound porch in the picturesque Tuscarora Mountain valley, Little Cove offers a fully equipped kitchen, a comfortable living and dining space, and four bedrooms on the second floor. Sleeping arrangements include 2 single beds, 2 double beds, and a double deck bunk. Access the cabin by the adjacent parking area. Low clearance vehicles should use caution. Hikers can climb to the top of the Tuscarora Mountain to access the Tuscarora Trail by local connector trails. This cabin is ideal for families, offering private sleeping areas.
For more information on this and other PATC cabins, we recommend acquiring and reading a copy of our PATC Cabins Book.




