Little Orleans Cabin
About the Cabin
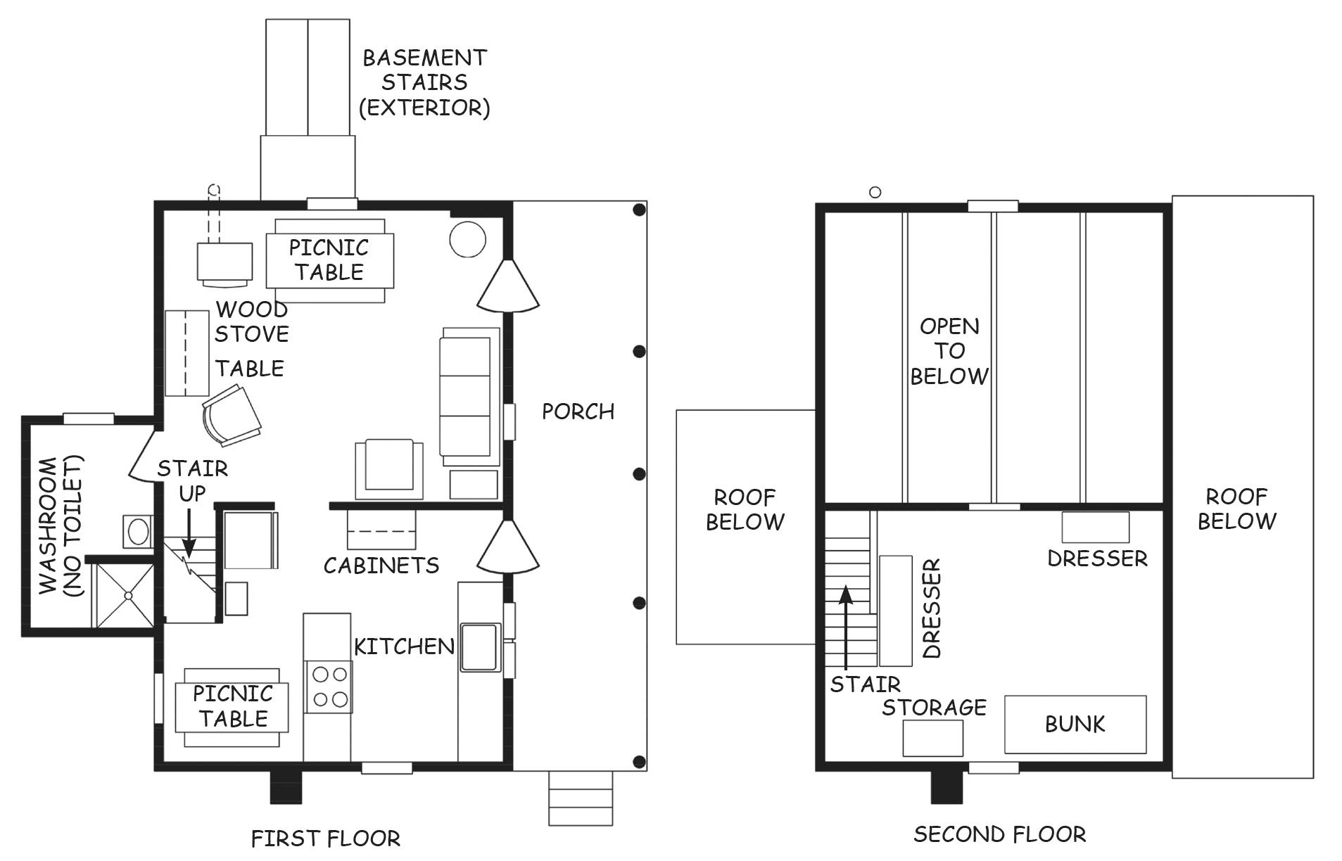
This comfy, semi-primitive cabin is located in Little Orleans, MD, adjoining the C&O Canal National Historic Park. Situated in a meadow, this private and peaceful cabin offers a kitchen with potable running water, an electric stove and refrigerator with a wood stove and outdoor grill, and a nice living space. Mattresses can be spread out in the upstairs loft space. From April to November renters can enjoy a shower. Access the cabin from the adjacent parking area or by hike-in from the C&O Canal Towpath. Hikers can travel along the C&O Towpath or explore the Green Ridge State Forest. The privacy at this very nearly modern cabin makes it ideal for families with children.
For more information on this and other PATC cabins, we recommend acquiring and reading a copy of our PATC Cabins Book.




