John's Rest Cabin
About the Cabin
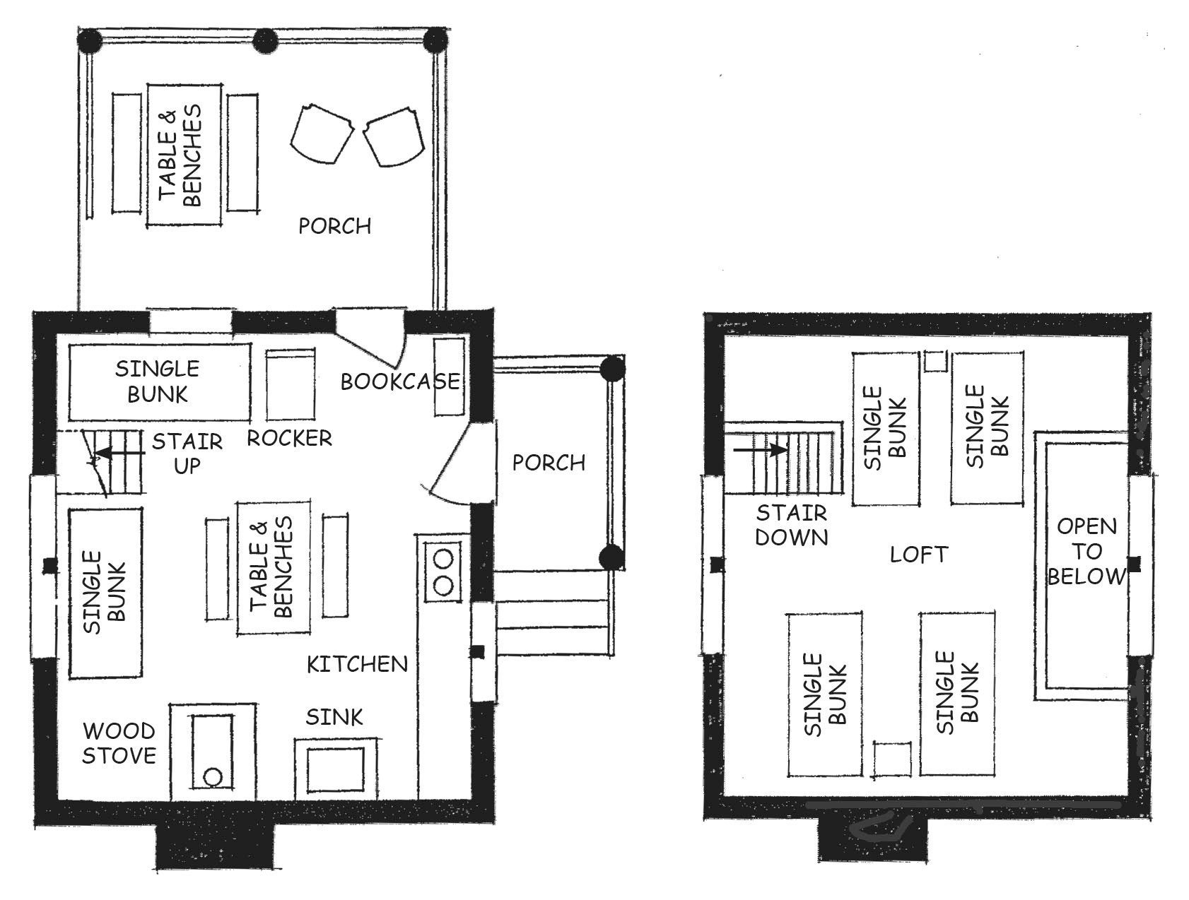
This rustic log cabin, reconstructed with funding from the Fischbach family, is located near the Pocosin Mission site in Greene County, VA. The main room includes a propane cooking stove, a wood stove, a dining and sitting area, and a double–deck bunk. There is space for 4 single mattresses in the loft, and the porch overlooks Entry Run. Access the cabin by a 0.4 mile hike-in, and enjoy hiking opportunities on Entry Run Trail or in SNP.
For more information on this and other PATC cabins, we recommend acquiring and reading a copy of our PATC Cabins Book.




