Hermitage Cabin
About the Cabin
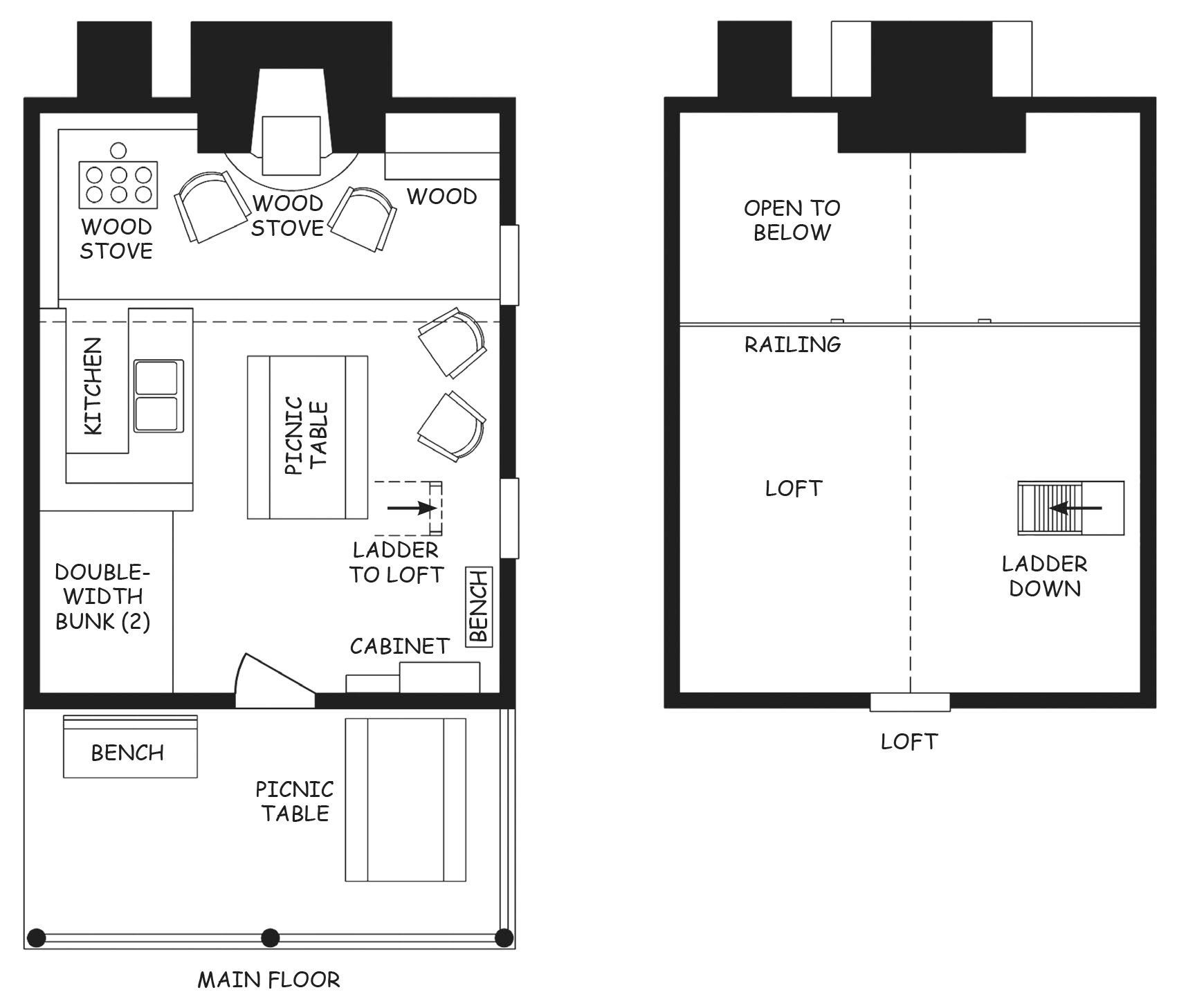
This cozy, primitive, one-room cabin is located in the Michaux State Forest, about 6 miles from Waynesboro, PA. The reconstruction of the cabin was completed in by PATC volunteers in 1977. Access the cabin from the AT or by a 0.25 steep, and rocky hike-in from parking. There, you will find an intimate main floor including a kitchen and dining area, a fireplace and wood stove, and a double-width, double deck bunk with room for 6 mattresses in the loft space above. Hikers can travel along Tumbling Run and the AT, and explore Michaux State Forest or nearby Caledonia State Park and Gettysburg.
For more information on this and other PATC cabins, we recommend acquiring and reading a copy of our PATC Cabins Book.




