Gypsy Spring Cabin
About the Cabin
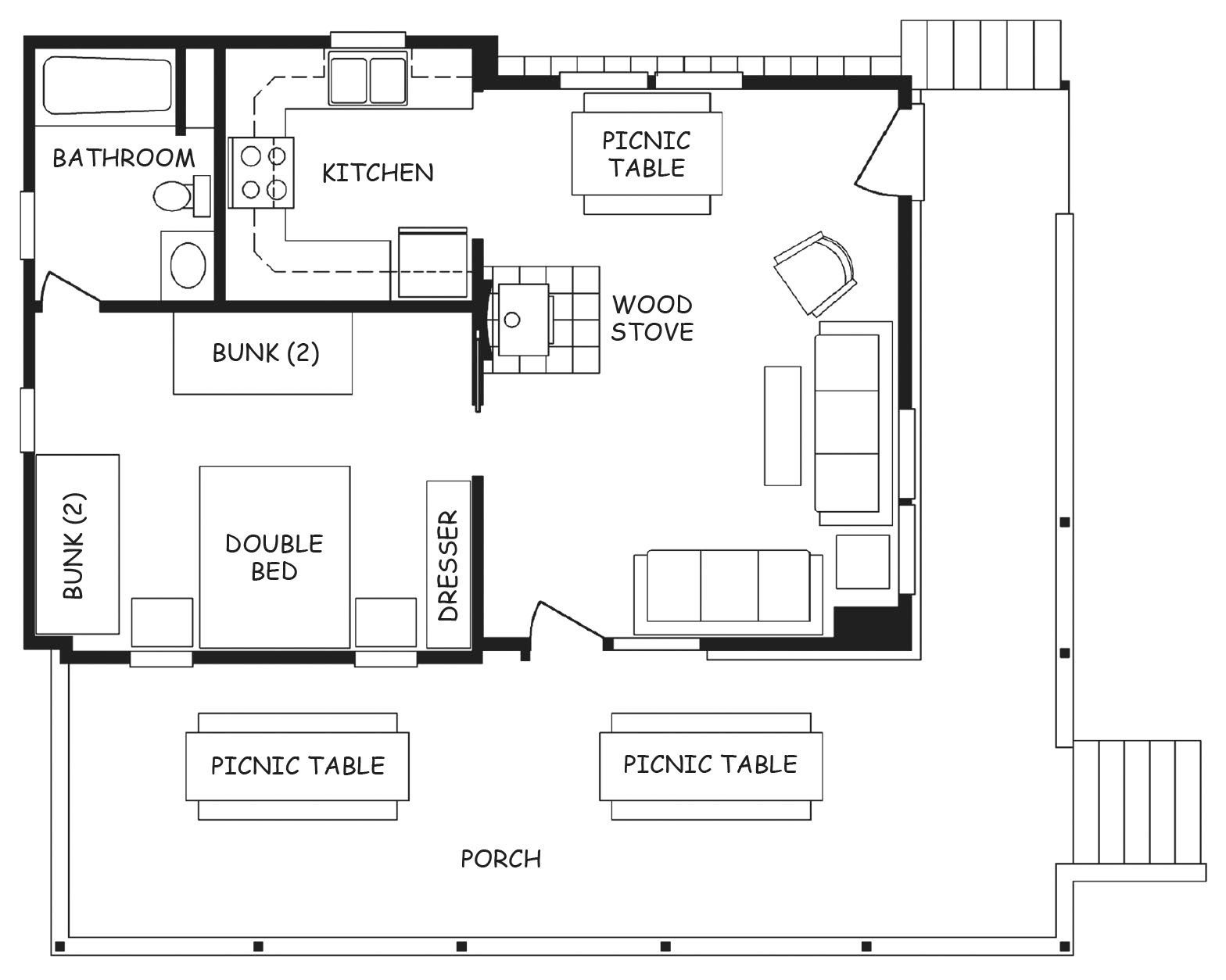
This modern, members-only cabin is located just 10 miles west of Biglerville, PA and a short 1.2 miles from the AT by connector trail. The rustic cottage was built by Ray Fadner, who later donated this retreat to PATC. Parking is available at the cabin. There, you will find a fully equipped kitchen, complete with a refrigerator, microwave, and stove, as well as a quaint living and dining area cozily warmed by a wood stove and supplemental baseboard heat. There are 2 double-deck bunks and a double bed. In certain seasons, you might see a view of Gettysburg from the covered porch. Hikers can travel along the AT or visit nearby Michaux State Forest or Caledonia State Park.
For more information on this and other PATC cabins, we recommend acquiring and reading a copy of our PATC Cabins Book.






