Corbin Cabin
About the Cabin
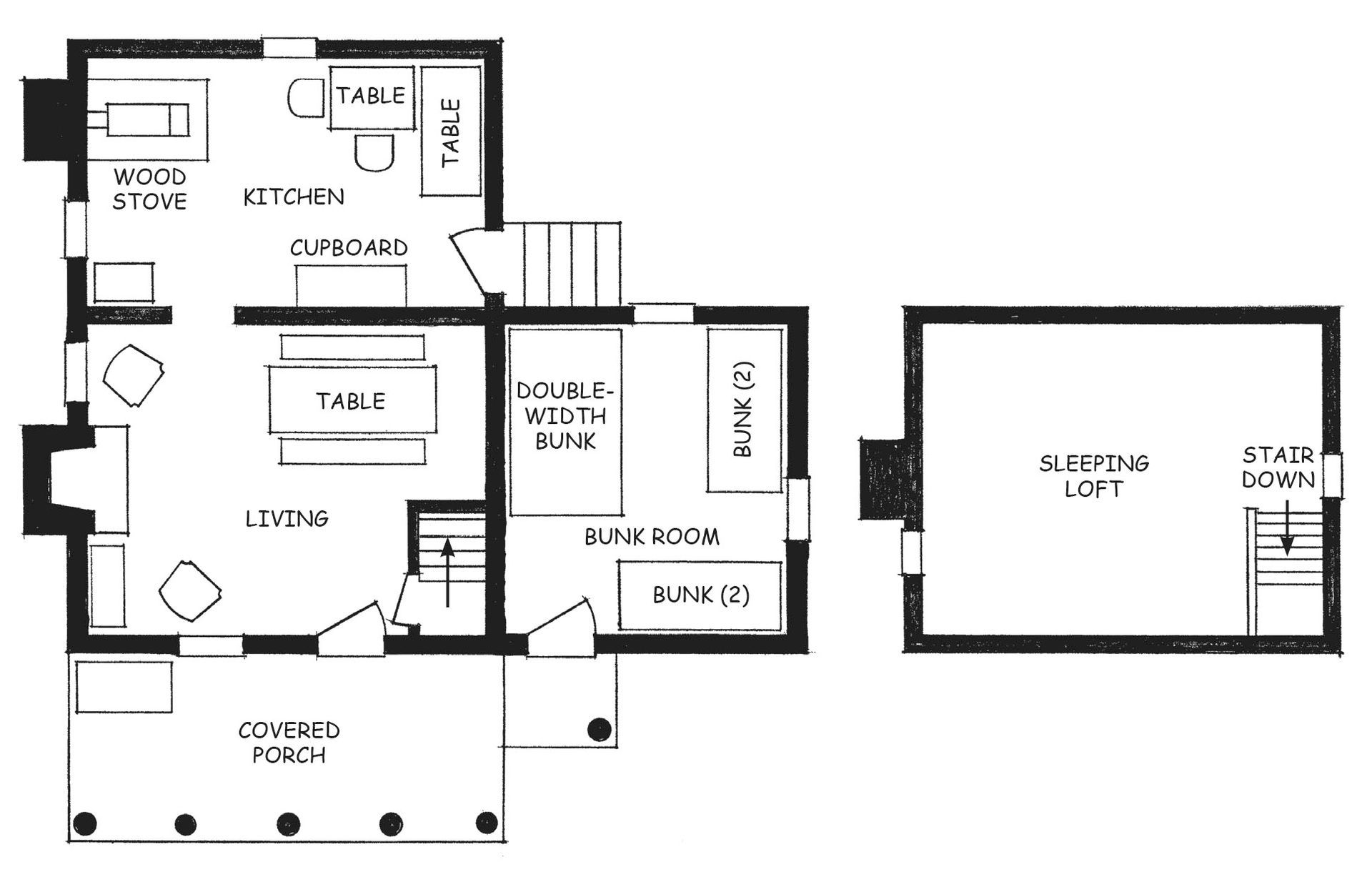
This recently restored four-room, public cabin is located in the Central District of Shenandoah National Park. Found along the river in Nicholson Hollow, the chestnut log cabin served as the mountain home of moonshiner George Corbin. It was lovingly restored first in 1954 and again in 2017, to preserve the original character of the cabin. Access Corbin by a 1.5-mile hike-in, or a four mile hike-in when Skyline Drive is closed. There, you will find a charming living space with a fireplace next to the kitchen with a wood stove and dining area. Climb the stairs to find a single double-width bunk and two double deck bunks. Bears and snakes are frequently spotted in this area, as a result to the proximity to the river. This cabin offers an abundance of hiking opportunities, in an ideal location within SNP. Call SNP at 540/999-3500 (option 1, option 1) for Skyline Drive closure information and be prepared to pay the Park entrance fee.
The wood stove at this cabin has been detached for repairs. There is currently no heat source in the cabin and renters should pack a backpacking stove for cooking.
Note: Depending on the season, many different snake species may be spotted around or even inside the cabin. They are protected species and should not be harmed. We recommend that anyone averse to snakes select another cabin.
For more information on this and other PATC cabins, we recommend acquiring and reading a copy of our PATC Cabins Book.



