Conley Cabin
About the Cabin
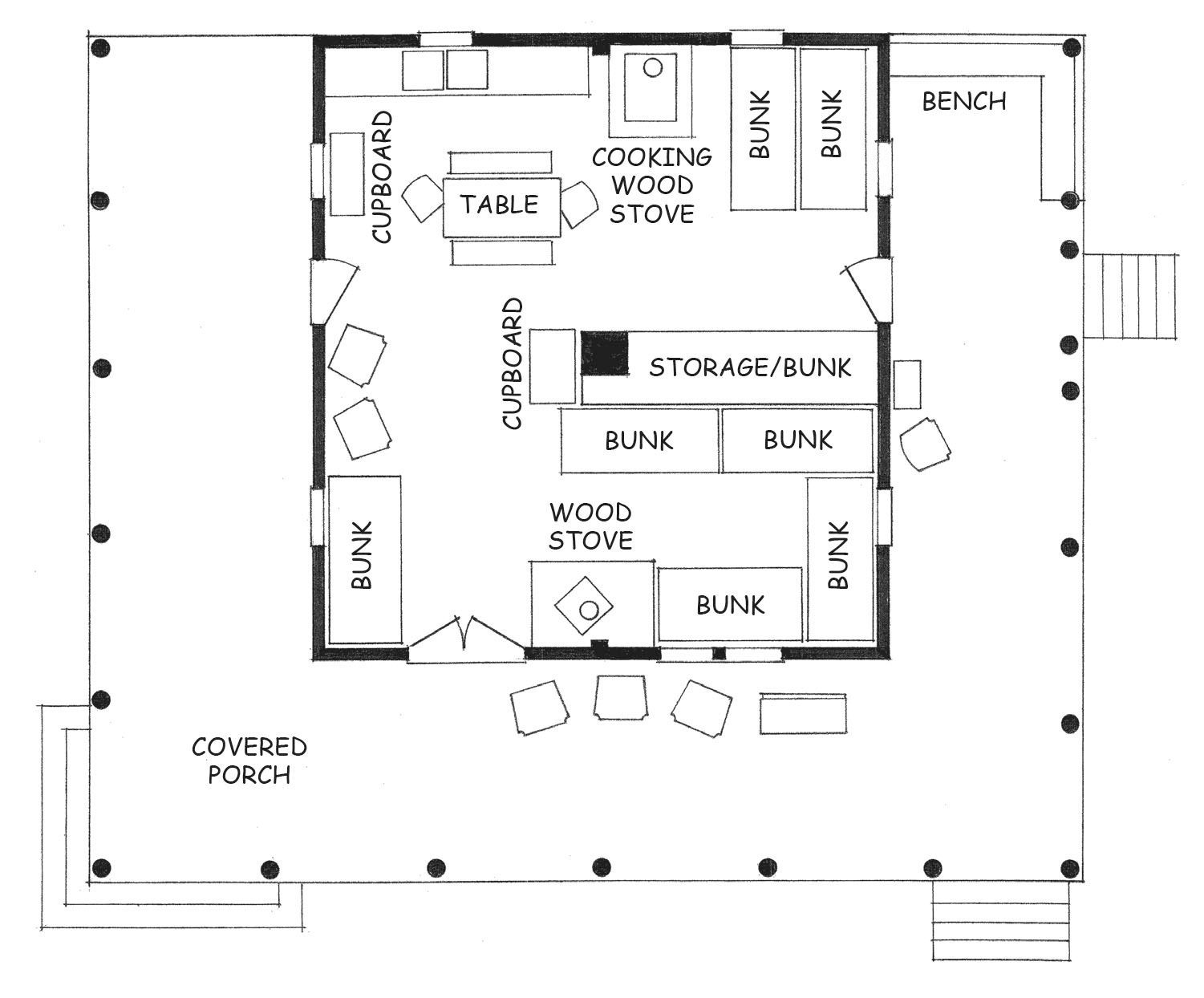
This one room, members-only cabin is located on the PATC Vining Tract in Greene County, VA. Built by Elijah Conley in the 1940s and renovated in 1994, Conley boasts a large wrap around porch that overlooks an exceptional view. Access the cabin via a required 0.4-mile hike-in from the parking area. There, you will find an outdoor cook shed equipped with a stone grill, and an open interior space with eight bunks, a wood stove, and a dining area. Hikers can travel to nearby SNP or explore the remaining vestiges of the old settlement, located on the tract.
ACCESS NOTE: The last 0.8 miles to the shared cabin parking along Goose Pond Road can become heavily eroded at times, and high clearance vehicles are recommended. Although this gravel road is state-maintained, it can become impassible after heavy rains or in the event of snow. No alternate access is available.
For more information on this and other PATC cabins, we recommend acquiring and reading a copy of our PATC Cabins Book.







