Cliff's House Cabin
About the Cabin
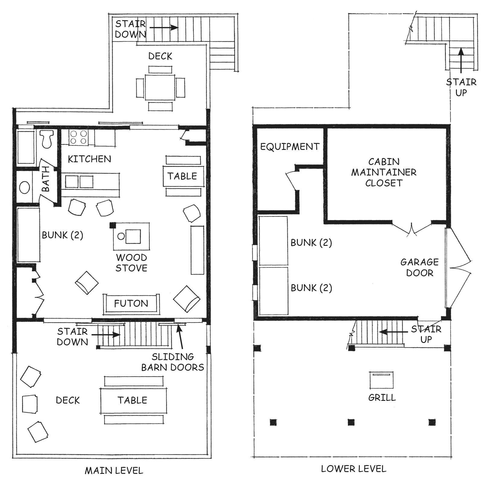
This uniquely-designed, two-story house is located near Elkton, VA, west of Shenandoah National Park. The members-only home was built in 1978 by long-time PATC member Cliff Firestone. Parking is available by the cabin. Upstairs, you will find a double futon and a double deck bunk, as well as a fully functional kitchen and bathroom. The upstairs kitchen/living space looks out over a view from the porch. Downstairs, you will find 2 double-deck bunks. The easily accessible, pet-friendly home is ideal for families. A short drive to Shenandoah National Park offers a variety of hiking opportunities.
For more information on this and other PATC cabins, we recommend acquiring and reading a copy of our PATC Cabins Book.




