Butternut Cabin
About the Cabin
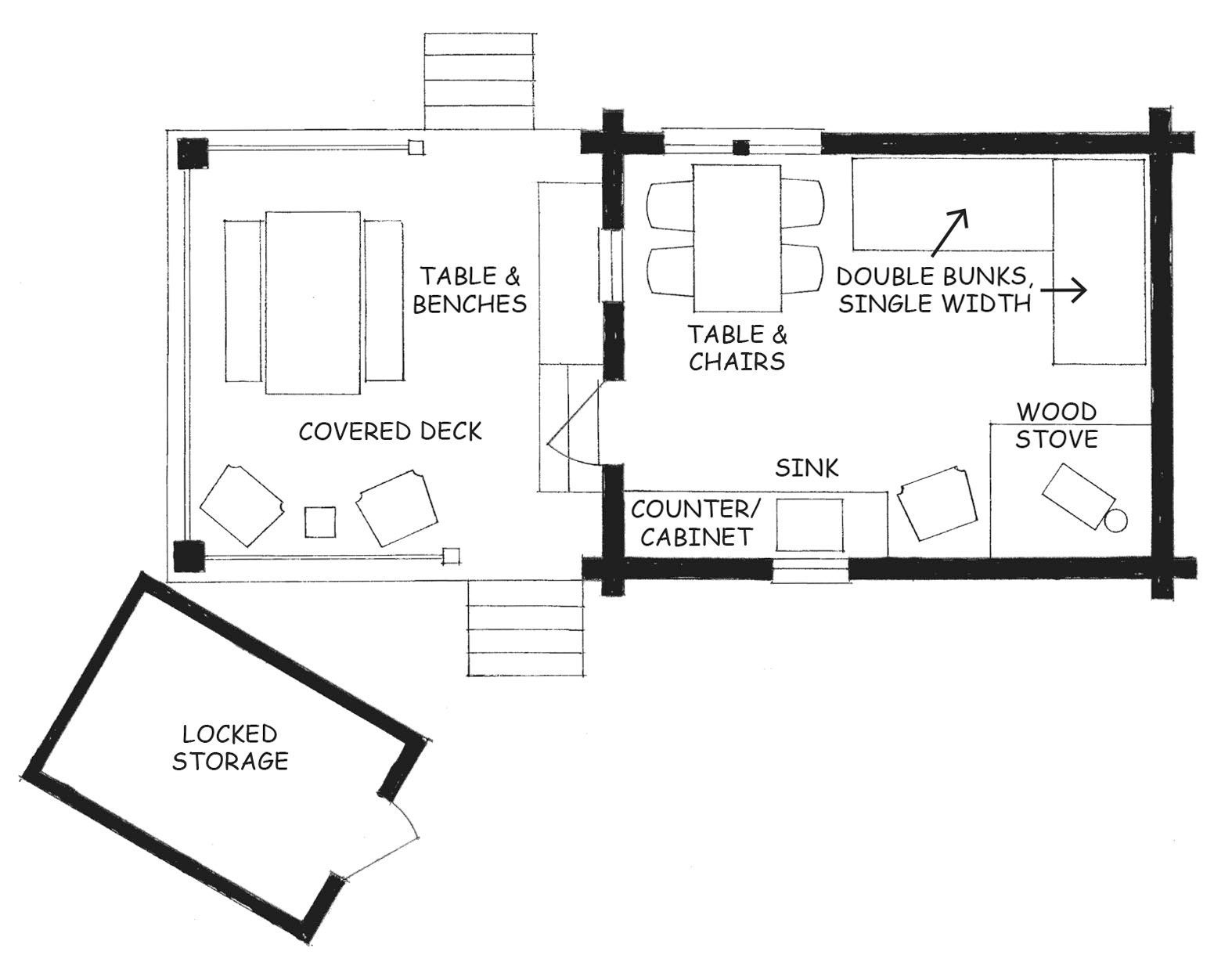
This small but cozy members-only cabin is located on the PATC Vining Tract in Greene County, VA. Built by the same crew of volunteers who refurbished Wineberry Cabin, Butternut was constructed from repurposed, chestnut logs from a nearby, dilapidated horse barn. Vining Tract visitors may recognize Butternut, as it was formerly maintained solely for volunteer use. Access the cabin via a 0.3 mile hike-in from the parking area. There, you will find a quaint interior space with two double-deck bunks, a wood stove, and a kitchen & dining area. Hikers can travel to nearby SNP or explore trails and remaining vestiges of the old settlement, located on the tract.
Note: Due to its proximity to Conley Cabin, privacy should not be expected. The shed adjacent to the cabin houses trail and tract maintenance tools. Accordingly, volunteers may need to access the shed when guests are at the cabin.
ACCESS NOTE: The last 0.8 miles to cabin parking along Goose Pond Road can become heavily eroded at times, and high clearance vehicles are recommended. Although this gravel road is state-maintained, it can become impassible after heavy rains or in the event of snow. No alternate access is available.
For more information on this and other PATC cabins, we recommend acquiring and reading a copy of our PATC Cabins Book.




