Argow Cabin
About the Cabin
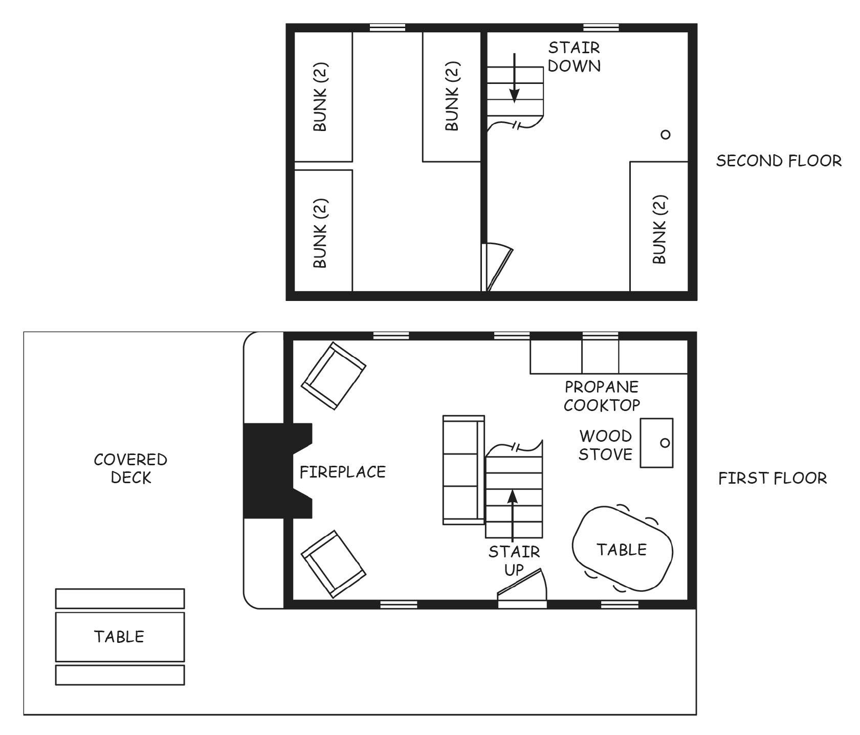
This two-story chestnut log home is located off of Skyline Drive, near mile marker 71, in Shenandoah National Park. The members-only cabin was dedicated to Honorary Life Member Keith Argow in 2010 for enabling the renovation of the structure. Access the cabin by a 1-mile downhill hike-in from the parking area. There, you will find four double-deck bunks on the second floor and a comfortable kitchen/living space on the first floor. Use the outdoor solar shower in warm weather, cook on the gas stove, and enjoy the view from the covered wrap-around deck. Hikers can connect to the AT, about 2 miles from the cabin. No outdoor fires are permitted.
For more information on this and other PATC cabins, we recommend acquiring and reading a copy of our PATC Cabins Book.




