Robert Humphrey Cabin
About the Cabin
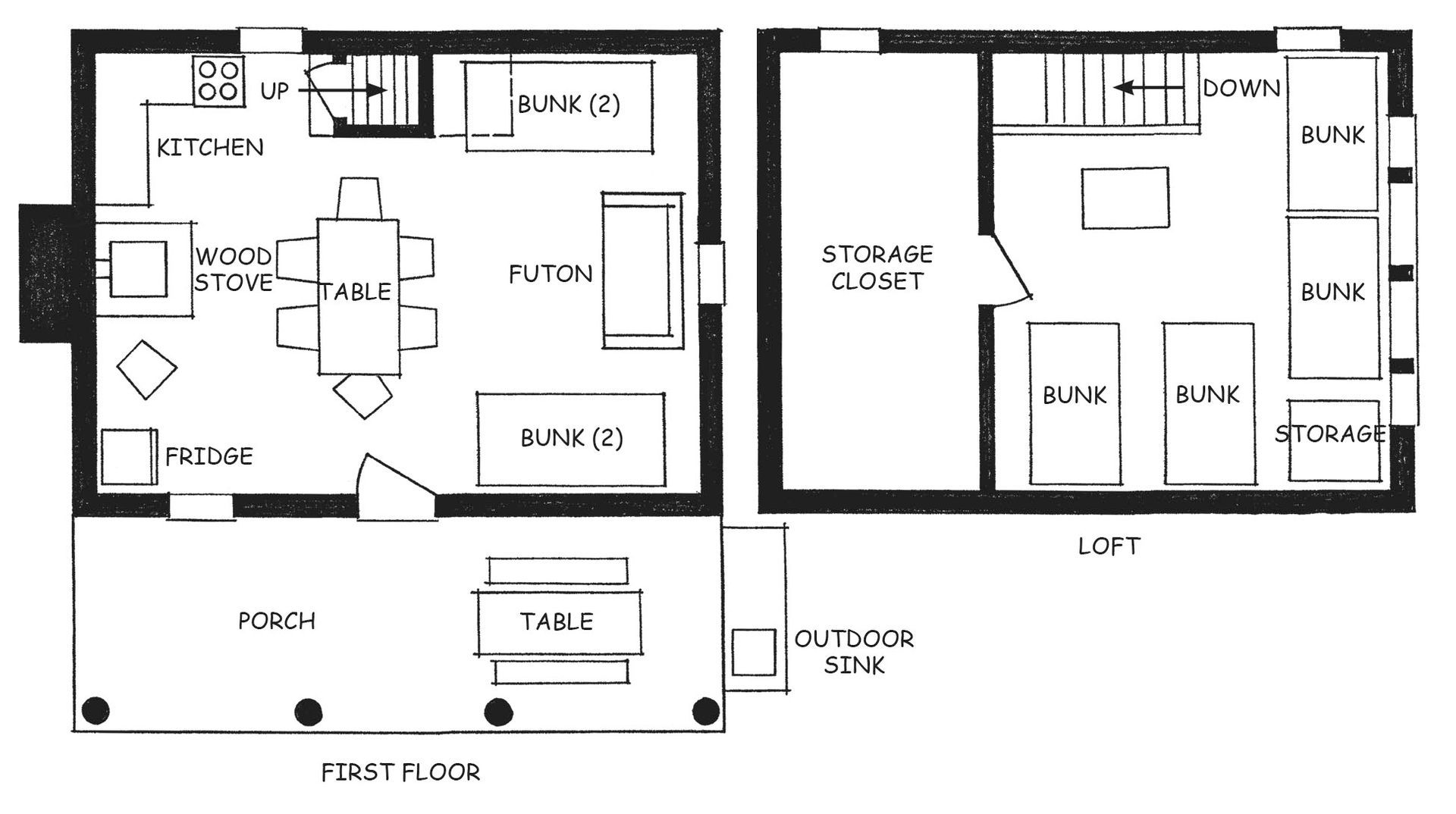
This two-story, semi-primitive log cabin, originally known as Weaver, was renamed for PATC Honorary Life Member Robert Humphrey for his dedicated restoration efforts on the cabin. Located in Elkton, VA, down the hill from Cliff’s House, this cabin was constructed of chestnut, pine, and oak logs nearly two-hundred years ago. Access the cabin from the adjacent parking area. There, you will find a kitchen/dining area with a refrigerator and electric stove. On the front porch, the sink provides running water from the spring through the fall; an outdoor spigot is available in colder months. Sleeping arrangements include 2 double-deck bunks and 4 single bunks. Hikers can travel to nearby SNP. Please note that there are neighbors near the cabin.
For more information on this and other PATC cabins, we recommend acquiring and reading a copy of our PATC Cabins Book.




